450
portfolio_page-template-default,single,single-portfolio_page,postid-450,locale-en-us,stockholm-core-2.2.9,qodef-qi--no-touch,qi-addons-for-elementor-1.5.2,select-child-theme-ver-1.1,select-theme-ver-8.8,ajax_fade,page_not_loaded,vertical_menu_enabled,paspartu_enabled,menu-animation-line-through,side_area_uncovered,,qode_menu_,wpb-js-composer js-comp-ver-6.6.0,vc_responsive,elementor-default,elementor-kit-199

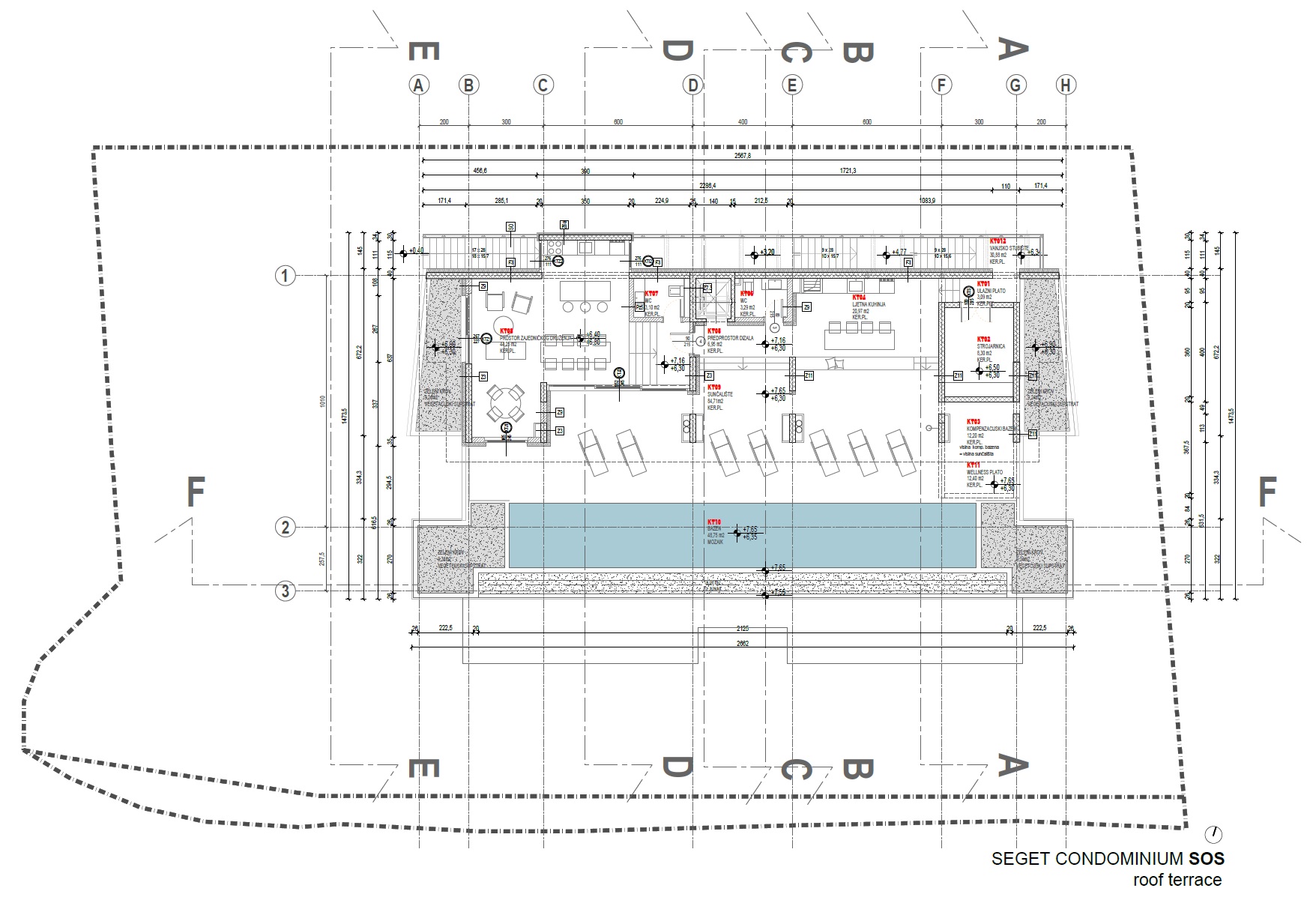
Seget Condominium SOS

Residential condominium with communal and commercial facilities

Location_Seget Donji, Croatia
Area_1.100,00 m2 GBA
Category_Residential
Status_Construction
Year_2021